Body Electronic Control Module BMW 325i 1992 E36 Manual PDF
[x] Cancel search | Manufacturer: BMW, Model Year: 1992, Model line: 325i, Model: BMW 325i 1992 E36Pages: 759
Page 722 of 759

BB586
I
h
B
RED/BLU
1
13
SLKjWHT
14
YELIGRN
CON
N
13252
BODYELECTRONICS
CONTROL
MODULE
(ZKE
IV)
S
BLK/GRY
D
YELIGRY
2
BRNIGRYIYEL
BRN/BLU/YEL
VIO/WHT
I7
BLK/WHT
I
I}
-
I-
WHTIGRN
I~
I
CONN
13254
li
23
BL
}
BLKIWHT
I
24
YEL/BLK
I
CONN
13253
G302
ELECTRICAL
WIRING
DIAGRAMS
ELE-239
Power
Windows
1997
318ti
INTERIOR
INTERIOR
LIGHTS
LIGHTS
SYSTEM
SYSTEM
I
(D
I
-~
1
{
°
1
J
L
.
~
J
BRN/BLU/YEL
21
BRN/GRY/YEL
2l1/l
/
PASSENGERS
F
-
;7
DRIVERS
DOOR
DOOR
JAMB
JAMB
SWITCH
SWITCH
DRIVERS
D
I
PASSENGERS
POWER
POWER
WINDOW
WINDOW
SWITCH
I
d
.
SWITCH
Page 731 of 759

ELE-248
ELECTRICAL
WIRING
DIAGRAMS
1
69042
83567
HOTATALLTIMES
~FRONT
POWER
DISTRIBUTION
BOX
RED
RED
SUNROOF
SUNROOF
SUNROOFCONTROL
SWITCH
-_
MOTOR
ASSEMBLYM
i
HOTATALLTIMES
~
1FRONTPOWER
DISTRIBUTION
BOX
COMFORT
________---_
__-_-____
RELAY
Z
2
y
/
4
RED/BLU1
BLK/G
RN
RED/B1-U
"
RED/BLU
1
5
79
FUSE
I
FRDINT
POWERPOWER
F1
DISTRIBUTION
BOX
30A
J
STEP-
BY-
MICROSWITCH
STEP
SWITCH
RED
Power
Sunroof
85
2
y
'
8
y
'
RED/VIO'
SPIN
VIO/YEL
9
I
"
F-1992
VIO/YEL~
9
_
X_
13012
"
ICOMFORTI
BRNI
RELAY
1
I
CONTROL
I
POWERWINDOWS
G202
CENTRALLOCKINGSYSTEM
MODULE
BRNT
BRNI
t
G203
FRONT
POWER
Fi
/
9
E
~
DISTRIBUTION
BOX
5A
-I
!
_I
SUNROOF
SUNROOF
SUNROOF
CONTROL
SWITCH
MOTORASSEMBLY
1
M
-
Y
II
STEP-BY-
MICROSWITCH
STEP
I
SWITCH
NCA
BRNI
BRNI
1
G203
BODY
ELECTRONICS
CONTROMODULE
(ZKE
IV)
COMFORT
RELAY
1992-93
1994
Page 732 of 759

2
RED/VIO
HOT
IN
ACCY,
RUNAND
START
fi
FUSEI
FRONTPOWER
J
j
DISTRIBUTION
BOX
V
30A
I
84194
2
RED/VIO
HOTATALLTIMES
r
FUSE1FRONT
POWER
Fl
DISTRIBUTION
BOX
L
soA
Power
Sunroof
NCA
SUNROOFSUNROOF
SUNROOF
CONTROL
SWITCH
-_
MOTOR
ASSEMBLY
M
I
STEP-BY-
MICROSWITCH
--
STEP
SWITCH
ELECTRICAL
WIRING
DIAGRAMS
ELE-249
NCA
.1911
2y
BRNI
AL
G203
INTERIOR
LIGHTS
GRY/RED
r
SYSTEM
6
OPENCLOSE
4
3
BRNNI
BLK/YES
WHT/YELl
1
X272
X13176
2X272
3T
11
X13176
N
BLK/REDI
BLK/GRN
1q
10
BRN
I
BODY
ELECTRONICS
I
~CONTROLMODULE
1
I
i
(ZKE
IV)
SUNROOF
SWITCH
SUNROOFCONTROL
ASSEMBLY
1995
Except
318ti
1996-97
Except
318ti
Page 733 of 759

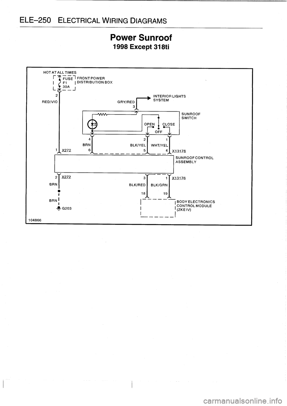
ELE-250
ELECTRICAL
WIRING
DIAGRAMS
104866
HOTATALLTIMES
FUSE
,
FRONT
POWER
F1
DISTRIBUTION
BOX
L
30A
~-
-
J
I
INTERIOR
LIGHTS
RED/V10
GRY/RED
r
SYSTEM
Power
Sunroof
1998Except
318ti
3
OPEN
i
CLOSE
.7
OFF
4
L
2
1
t
BRN
BLK/YEL
WHT/YEL
X272
6
5
4
X13176
2
X272
3
1
X
3176
t
BRN
BLK/RED
BLK/G
RN
18
19
SUNROOF
SWITCH
SUNROOFCONTROL
ASSEMBLY
BRN
BODYELECTRONICS
I
CONTROLMODULE
~-
G203
I
i
(ZKE
IV)
Page 734 of 759

84238
GRY/RED
84240
INTERIOR
LIGHTS
SYSTEM
HOTAT
ALL
TIMES
FRONT
POWER
DISTRIBUTIONBOX
-
.I
RED
RED
OMFORT
------
-
-
----------
RELAYC
T
2
REDIBLU~
REDIBLU
1
19I
X13254
r
-
FRONTPOWER
BODY
I
FUSE
I
DISTRIBUTION
BOX
I
ELECTRONICS
I
I
I
CONTROL
I
30
.4
J
I
-
I
MODULE_
2
-
REDIVIDI
NCA
ELECTRICAL
WIRING
DIAGRAMS
ELE-251
Power
Sunroof
HOTATALLTIMES
6
RED/VI
1
SUNROOF
SWITCH
NCAI
.L2
BRNI
BRNI
1
G203
BLKIYELI
WHT/YELI
BRNI
BLK/GRNI
BLKIRED
1u
18j,
X132
54
.
r
1
BOGY
I
ELECTRONICS
I
I
CONTROL
I
-
-
--
MODULE
1995
Early
SUNROOF
Production
CONTROLASSEMBLY
3
18ti
SUNROOFCONTROL
ASSEMBLY
1995
Late
2T
Production
&
BRN1
1996-98
318ti
BRN
s
Sliding
Sunroof
I
t
G203
Page 735 of 759

ELE-252
ELECTRICAL
WIRING
DIAGRAMS
88588
SL
BLK
104876
8
GRN
GRN
HOTATALLTIMES
FflONT
POWER
DISTRIBUTION
BOX
BLK/GRN
RED/BL
.
I
19
r
FUSEIFRONTPOWER
I
-
-
I
BODY
DISTRIBUTION
BOX
ELECTRONICS
F1
I
ICONTROL
Z30A
J
-
I
MODULE
RED/V1110'
1997
NCA
SUNROOF
318ti
Folding
SUNROOF
SUNROOFCONTROL
Sunroof
SWITCH
-_
MOTORASSEMBLY
M
~E~7
111
3
BLKIGRN
BLK/GRN
Power
Sunroof
STEP
-BY
I
.
MICROSWITCH
1
---
SWITCH
7
BLK/RED
BLKIRED
U
2J
.1
191
181
X7325
I
I
I
FOLDING
BODY
SUNROOF
ELECTRONICS
MOTOR
CONTROL
MODULE
HOTATALLT_IMES
FPONTPOWER
-
i
DISTRIBUTIONBOX
RED
REDIV
1
IO
9
BLK/YEL
NCA
BRNI
BRNI
1
G203
r
-
FRONTPOWER
FUSE
DISTRIBUTIONSOX
F1
II
,30A
J
4
BLK/YEL
TIP
CLOSE
OPEN
GRY/RED
6
SRN
FOLDING
4
SUNROOF
BRN
1
SWITCH
FOLDING
SUNROOF
COMFORTRELAY
1998
318ti
Folding
Sunroof
Page 736 of 759

I
671-E
L
I
11~V/HT/G
RN
I
-
3
BLKIYEL
CTRL
BIG
4
SLUIRED
,
CTRLSIG
I
5
GRV/RED
END
B
BRN
SPIN
G205
'
X11399
CONVERTIBLETOPDONTRGLMODULE
BODY
ELECTRONICS
CONTROL
MODULE
(ZKEIV)
03584
I
.
SPIN
BLK/BLU
I
-
_
I
w
HARD
OFCONNECTOR1
(IN
CONVERTIBLE
TOP
BR
B~
G~
RN/BLK
REARWINDOWBLOWER
MICRO
SWITCH
9
WHT/BLK
10
WHT/BLU
DEFOGGERSYSTEMBRNI
j
G202
ELECTRICAL
WIRING
DIAGRAMS
ELE-253
Convertible
Top
1994-97
NANDSTART
HOTATA
,
~LLTIMES
HOTACCV,
-
RU
,,
NANDSTART
HOTAT
777
A
IIB
L~~LTIMES
HOTACCV,R
'
U~
HOT
AT
ALL
TIMES
r/FUSE--___-
/FUS
E
-------
FUSE
-_____-/FPOWER
FUS
US
FU
42E------~F27E
DINT
T
IDRSRBUTIONBOX
7
BLK/RED
B
BLU/GRN
CT
RLSIG
9
GRYIBLKCTRLSIG
12V
10
RED/GRNIYEL
J
X13
15fi
TRUNKLIOSIG
20
21
BRN/WHT
WHT/VELDATASIG
2223
WHT/BLU
ROLL-OV
ER
SIG
-
GRN1VI0
DATASIG
2425
BRNIORG
GNDPWRSUPPLY
2B
~
X]1]
`z4
DATASIG
-
II1
I.
INTERIORLIGHTS
SYSTEM
CONVERTIBLE
TOPMOTOR
BLK/BRN
GRV/RED
4
BRNIORG
1
BRN/ORG
2
BRN/ORG
tSUPPLY
I
YEL/BLU
2
BLK/BLU
PO
STN
SIG
3
BLU/VEL
PO
STN
SIG
4
VEL/BRN
END
LK/GRN
CTRLSIG
POSTNSIG
B6
VEL/GRN
x1
157
TOP
OPEN
BIG
1
2
BLK/BRN
14
WHT/VIO
DATA
SIG
GND
B
BLKIBLU
PWRSUPPLY
6
VIO/WHT
,7
l
REAR
WDO
BLWPSIG
B
GRNIBLK
10
WHT/GRN
DATA
SIG
11
12
GRN/GRY
LEFT
DATASIG
II
ROLLOVER
SPOSIG
1B
ILK
HT
PROTECTION
TOP
CLOSED
BIG
14
BLKIGRN
ACTUATOR
DATASIG
1S16
WHT/VEL
1716
19
WHTIVIO
VIO/GRN
1
GRN/VIO
2
BLK/WHT
3
BLKIBLU
4
GRN/GR
V
5
WHT/VIO
B
BRN/OR
G
7
BLK
I
VIO
10
BLKIGRN
11
BLKIGRN
am
BLK/VIO
BLK/BLU
BLKIWHT
ROLLOVERSENSOR
RIGHT
II
ROLLOVER
PROTECTION
ACTUATOR
BLK/GRN
57
CLOSE
OFF
N-H
CONVERTIBLE
TOP
ACTUATING
SWITCH
BRN/ORG-
f
I
BLK/BLU
BLK/
,
BRNIORRG
CONVERTIBLETOP
POSITION
MICRO
SWITCH
WHTIBLU
~~
BLU
CONVERTIBLE
TOP
END-POSITION
MICRO
SW
ITCH
BLKIRED
BLU
ELK-
.
/EEL
RED
BRN
/ORG
~~
BRN
LOCKED
WHT/BLK
~~
CRY
UNLOCKED
WINDSCREENCOWLPANEL
LOCK
CONVERTIBLE
TOP
STORAGE
MOTOR
MICROSwITCH
(1996-97)
Page 737 of 759

ELE-254
ELECTRICAL
WIRING
DIAGRAMS
CONVERTIBLETOP
CONTROL
MODULE
I
18
W
HT/RED
I
1
X1
3254
I
I
1
5
WHT/
YEL
I
17
11
WHTIGRN
I
__I
X13255
BODYELECTRONICS
CONTROL
MODULE
(ZKE
IV)
II
NCA
BLC
-/BL
U
I
NCA
,
BRN
I
__I
HARDTOP
CONNECTOR
1
REARWINDOW
BLOWER
MICRO
SWITCH
104867
,2
LOCKCTRL
;
CTRLSIG
4
8-t
.)/RED
TOPOPENSIG
Ir
J2
J3DA
TASIG
GND
PWRSUPPLY
J
7
HOTAT
HOTINRUN,
HOTAT
HOTINRUN
HOTINRUN,
HOTAT
ALLTIMES
ACCYANGSTART
ALLTIMES
7II
~~
ANOSTART
ACCYANDSTART
ALLTIMES
AUXILIARY
F
_
FUS
_
E
,
r
7`
7
F_US_E
_
_
FUSE
FUSE
FUSE
FUSE
~FRONT
POWER
FUSE
BOXI
=35
I
I
L
,F43-
_
F7
F24
F42
P27
1
1-
1DISTRIBUTIONBOX
L
20-J
S
.
S
.-0-7-0-
5A
_
j
L
SS
OUTPUT
CTRLSIG
5
GRYIRED
III
II
II
I
I
INSTRUMENTCLUSTER
N
GND
8
BR
~~
G904
I
VIO/GRN
2
LOCK
CTRL
1
7
BLK/RED
BLK/WHT
4
CTRLSIG
J3
BLU/GRN
-
8LK/BLU
B
"
CTRLSIG
9
GRYLK
II
II
I
IIIIII
III
GRN/BLK
8
12V
,
D
RED
IIIII
III
IIII
I
I
I
I
BRNIORG
~n
lzo-
WHT/BLU
12
BLK/VIO
11
isUPPLY
1
YEL/BLUWHTIVIO
20ITIONSIG
2
BLK/BLUBLK/GRN
21
..
.
POSITION
SIG
3
BLU/YEL
GND
4
YEL/BRN
ROLLOVER
SENSOR
BLKIGRN
II
q
RIGHTROLLO
ER
OUATOR
N
POSITION
SIG
l
iS
BLK/GRNCTRLSIG
18
YEL/GRN
157
8LK/BRN
WHT/VIO
BLK/BLU
VIO/WHT
REARBLOWER
18
GRNI.L
K
AL
G312
NN=A
(
BRN/YEL
DEFOGGER
SYSTEM
NCABLKNCA
BRN
Convertible
Top
1998
2
1
281
Xt00
]E
,41x19010
BIx1oo17
241x190]7141X70012
RED
'
WH1I
GRN
/I
G
BNKI
GRNIGRNI
VIO
GRN/VIO
23
DATA
LINK
W
~T
CONNECTOR
GqN
[
GRN/
J
VIOLj
_
ROLLOVER
I
ELK
GRN
I
PROTECTION
1
20Y
,BT
I
WARNING
I
I
HT/
WHTlBLU
10
IN
D
1
EL
J
9
DATA
SIG
1_10
WHT/GRN
11J
lz
SPEEDSIG
113
BLK/WHT
TOPCLOSESIG
I14
BLK/GRN
rrr
r
CONVERTIBLE
UNLOCK
LOCK
I
TOPMOTOR
WINOSCREENCOWLPANEL
LOCKMICROSWITCH
"
BLK
K/WHT
2
I
I
CONVERTIBLE
TOP-END
TRUNKLID
POSITION
MICROSWITCH
MICROSWITCH
BLKIVIOBLK/BLU
BLK/WHT
RED/GRN
BRN
LEFT
II
ROLLOVER
PROTECTION
ACTUATOR
CONVERTIBLETOPSTORAGE
LID
LOCK
MOTOR
Page 750 of 759

WARNING
Your
common
sense,
good
judge-
ment,
and
general
alertness
are
cru-
cial
to
safe
and
successful
service
work
.
Before
attempting
any
work
on
your
BMW,
read
the
warnings
and
cautions
on
page
vi¡
and
the
copyright
page
at
the
front
of
the
manual
.
Review
these
warnings
and
cautions
each
time
youprepare
to
work
on
your
BMW
.
Please
also
read
any
warnings
and
cautions
that
accom-
pany
the
procedures
in
the
manual
.
A
ABS
(anti-lock
brakes)
See
Brakes
Accelerator
and
throttle
linkage
See
Maintenance
program
Air
conditioning
general
information
640-1
air
distribution
motor,
replacing
(rotary
knob)
640-10
air
distribution
motors
640-9
blower
motor,
removing/installing
640-1blower
motor
resistor
pack,
replacing
640-3
compressor,
replacing
640-12
compressor
clutch
640-13
condenser,
replacing
640-14
control
head
640-7
removing/installing
(digital
-display)
640-8
removing/installing
(rotary
knob)
640-7
control
module
removing/installing
(digital-display)
640-8
removing/installing
(rotary
knob)
640-8
evaporator,
removinglinstalling
640-17
evaporator
temperature
sensor,
replacing
640-17
expansion
valve,
removing/installing
640-16
microfilter,
replacing
640-18
receiverldrier,
replacing
640-15
sensor
fan
forinterior
temperature,
replacing
640-9
warnings
and
cautions
640-11
Air
distribution
(flap)
motor
See
Air
conditioning
See
also
Heating
Air
filter
See
Maintenanceprogram
Airbag
system
(SRS)
general
information
721-1
contact
ring,
replacing
721-3
driver
side
airbag,removing/installing
721-5
front
crash
sensor,
replacing
721-4
front
side-impact
airbag,
removing/
installing
721-7
front
side-impact
airbag
crash
sensor,
removing/installing
721-5
passenger
side
airbag,
removing/
installing
721-6
sensors
and
electronics
721-1
SRS
warning
light
and
fault
display
721-2
systems
721-1
ZAE
control
module,
replacing
721-5
Alarm
system
See
Central
locking
and
anti-theft
Alternator
See
Battery,
starter,
alternator
Anti-freeze
(Engine
coolant)
See
Maintenance
program
Anti-theft
See
Central
lockíng
and
anti-theft
AST
(Al¡
season
traction)
300-4
ATF
(Automatic
transmission
fluid)
See
Automatic
transmission
Automatic
transmission
See
alsoTransmission-general
general
information
240-1
ATF,draining
and
filling
240-2
ATF
leve¡,
checking
240-1
transmission
removaland
ínstallation
240-4
transmission,
removinglinstalling
240-4
transmission
service
240-1
Auxiliary
fan
See
Cooling
system
Axle
joint
See
Maintenance
program
B
Back-up
light
switch
See
Manual
transmission
Balljoint
See
Front
suspension
Battery
See
Battery,
starter,
alternator
Battery,
starter,
alternator
See
also
Maintenance
program
general
information
121-1
alternator,
removing/installing
(4-
cylinder
engine)
121-5
alternator,
removinglinstalling
(6-
cylinder
engine)
121-6
alternator
brushes,
inspecting/
replacing
121-7
alternator
service
121-4
batterycharging
121-4
battery
load
voltage
test
121-4
batteryopen-circuit
voltage
test
121-4
battery
service
121-3
INDEX
1
Battery,
starter,
alternator
(cont
.)
battery
testing
121-3
charging
system
quick
check121-2
charging
system
troubleshooting
121-
2
hydrometer
testing
121-3
solenoid
switch,
removinglinstalling
121-10
starter
service
121-7
starter
troubleshooting
121-7
starter,
removing/installing(4-cylinder
engine)
121-8
starter,
removing/installing(6-cylinder
engine
with
automatic
transmission)
121-9
starter,
removing/installing
(6-cylinder
engine
with
manual
transmission)
121-8
static
current
draw,
checking
121-2
voltage
regulator,
removing/installing
121-6
Bearing,
wheel
See
Front
suspension
or
Rear
suspension
Blowermotor
See
Air
conditioning
See
also
Heatíng
BMW
emblem
See
Exterior
trim,
bumpers
Body-general
general
information
400-1
body
assembly
400-1
central
body
electronics
400-4
convertible
models
400-2
coupe
models
400-2
electronic
immobilizatíon
system
400-
4
exterior
and
aerodynamics
400-2
heating
afhdair
conditioning
400-5
instruments
and
controls
400-4
interior
equipment
400-3
seats
and
seatbelts
400-3
Body
side
molding
See
Exterior
trim,
bumpers
Brake
fluid
See
Maintenance
program
Brakes
general
information
340-1
antilock
brake
system
(ABS)
340-11
inspection
340-12
wheelspeed
sensors,
replacing
340-12
bleeding
brakes
340-3
brake
booster,
removinglinstalling
340-8
brake
caliper,
removing/installing
340-6
brake
pads,
calipers,
and
rotors
340-3
brake
pads,
replacing
340-4
brake
rotor,
removing/installing
340-7
master
cylinder,
removing/installing
340-7
parking
brake
340-10
adjusting
340-10
.
cable,
replacing
340-11
shoes,
removinglinstalling
340-11
Page 751 of 759

2
INDEX
Brakes
(cont
.)
pressure
bleeding
brakes
(except
cars
wíth
AST)
340-3
troubleshooting
340-1
Brushes,
alternator
See
Battery,
starter,
alternator
Bulbs
See
Exterior
lighting
See
also
Instruments
Bumpers
See
Exterior
trim,
bumpers
C
CamberSee
Steering
and
wheel
alignment
Camshaft
See
Cylinder
head
and
valvetrain
Camshaft
position
sensor
See
Ignition
system
Camshaft
timing
chain
general
information
117-1
camshaft
timingchain,
4-cylinder
117-
2
camshaft
timing
chains,6-cylinder
117-6
camshaft
timing
chain,
removing
(4-cylinder
engines)
117-2
camshaft
timing
chains,
removing
(6-cylinder
engines)
117-7vanos
(variable
valve
timing)
117-14
control
unit,
removing
117-16system
operation,
testing
117-14
Caster
See
Steering
andwheel
alignment
Catalytic
convertor
See
Exhaustsystem
Cautions
viü
Center
bearing
See
Driveshaft
Center
console
See
interior
trim
Central
body
electronics
(ZKE
IV)
515-8
Central
locking
system
(ZVM)
515-7
Centrallocking
and
anti-theft
general
information
515-1
door
handles
and
Iocks
515-1
door
striker,
replacing
515-6
front
door
handle,
removing/
installing
515-3
front
door
lock,
removing/installing
515-1
rear
door
handle,
removing/installing
515-5
rear
door
lock,
removing/installing
515-4
EWS
II
control
module,
replacing
515-10
EWS
II
ring
antenna,
replacing
515-10
EWS
II
transmitter/receiver
module,
replacing
515-11
locking
system
and
electronic
immobilization
515-7
luggage
compartment
locking
actuator,
removing/installing
515-6
Clutch
general
information210-1
clutch
hydraulic
system,
bleeding
and
flushing
210-2
clutch,
inspecting
and
installing
210-5
clutch
master
cylinder,
replacing
210-2
clutch,
removing
210-4
clutch
slave
cylinder,
replacing
210-3
transmission
pilot
bearing,
replacing
210-6
Clutch
fluid
See
Maintenance
program
Coil
See
Ignition
system
Coilspring
See
Rear
suspension
Component
locations
See
Electrical
component
locations
Compressor
See
Air
conditioning
Compressor
clutch
See
Air
conditioning
Condenser
See
Air
conditioningControl
arms
See
Front
suspension
See
also
Rear
suspension
Convertible
top
general
information
541-1
manual
convertible
top
541-1
lid
release
mechanism
541-2
replacing
541-2
visor
latch
541-1
visor
latch
píate
541-1
power
convertible
top
541-2
drive
motor,
replacing
541-7
emergency
operation
541-7
front
latching
mechanism
541-4
lid
541-9
replacing
541-5
visor
latch
541-4
visor
latch
motor541-5
visor
latch
plate
541-4
rollover
protection
system
541-9
Coolant
(Anti-freeze)
See
Maintenance
program
Coolant
pump
See
Cooling
system
Cooling
system
general
information
170-1
cooling
fan,
replacing
170-8
coolant
pump,
replacing
170-10
coolant
pump
and
thermostat170-1
coolant,
draining/filling
170-5
cooling
fans
170-2
cooling
fan,
testing
170-4
cooling
system
service
170-5
cooling
system,
bleeding
(radiator
with
integral
expansion
tank)
170-6
cooling
system
pressure
test
170-3
electric
cooling
fan,
replacing
170-8
radiator,
removing/installing
170-11
Cooling
system
(cont
.)
radiator
and
expansion
tank
170-1
radiator
service
170-11
temperature
gauge
quick
check170-3
thermostat
quick
check
170-3
thermostat,
replacing
170-9
troubleshooting
170-2
warnings
and
cautions
170-2Crankshaft
position/rpm
sensor
See
Ignition
system
Crash
sensor
See
Airbag
system
(SRS)
CV
joint
See
Maintenance
program
See
also
Rear
suspension
Cylinder
head
and
valvetrain
general
information
116-1
camshaft116-7
camshafts,
removing/installing
(M42
engine)
116-1camshafts,
removing/installing
(M44
engine)
116-3
camshafts,
removing/installing
(6-cylinder
engine)
116-4
cylinder
head,
disassembly/assembly
116-1
cylinder
head
and
valvetrain,
reconditioning
116-7
cylinder
head
116-7
hydraulic
cam
followers,
checking
and
replacing
(M42
and
al]
6-cylinder
engines)
116-9
hydraulic
valve
adjusters,
checking
and
replacing
(M44
Engine)
116-8
valve
guides
116-10
valveseats
116-12
valve
springs
116-12
valve
stem
oil
seals
116-11
valves
116-11
valves,
leak
test
116-11
valves,removing/installing
116-6
Cylinder
head
removal
and
installation
general
information
113-1
cylinder
head,
removing/installing
(4-
cylinder
engine)
113-1
cylinder
head
(6-cylinder
engine),
removing/installing
113-10
Dashboard
See
Interior
trim
Deck
lid
See
Trunk
lid
Defogger
See
Heating
Differential
See
Final
drive
DISA
(dual
resonance
intake
system)
See
Fuel
injection
See
also
Engine-general
DME
(digital
motor
electronics)
See
Ignition
system
See
alsoFuel
injection