MITSUBISHI 3000GT 1992 2.G Workshop Manual
3000GT 1992 2.G
MITSUBISHI
MITSUBISHI
https://www.carmanualsonline.info/img/19/7561/w960_7561-0.png
MITSUBISHI 3000GT 1992 2.G Workshop Manual
Trending: bulb, audio, ESP inoperative, cd storage, compression ratio, trunk, width
Page 631 of 738
Downloaded from www.Manualslib.com manuals search engine 54-I 35
1 TSB Revision
Page 632 of 738
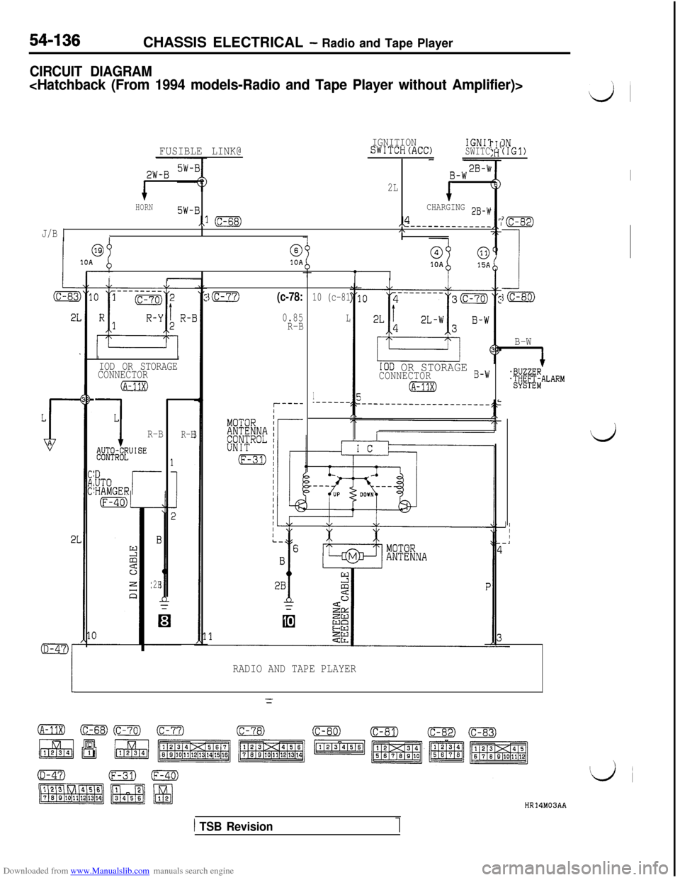
Downloaded from www.Manualslib.com manuals search engine 54-136CHASSIS ELECTRICAL - Radio and Tape Player
CIRCUIT DIAGRAM
d
I
FUSIBLE LINK@IGNITIONSWITCH(ACC)IGNIlSWITC
2W-B
1
B-W2B-w
2LIHORN5W-B
,,l (c-68)
CHARGING 2B-W
,,4------___----_cl\I
IN(IGl)
‘(c-82,
I
i(c-80)
J/B
@10A
tII
IOD OR STORAGE B-WCONNECTOR
(A-11X)
IIIOD OR STORAGE
CONNECTOR
(A-11X)
L
1R-B
W4igfUISE
ID,UTO:HAMGERr
3m(c-78:
0.85
R-B
10 (c-81
L
1.------
B-W
.BUZZER.@;&ALARM
dR-E
2E
RADIO AND TAPE PLAYER
HR14M03AA
1 TSB Revision
Page 633 of 738
Downloaded from www.Manualslib.com manuals search engine CHASSIS ELECTRICAL - Radio and Tape Player
54-137 ~
L;
(c-(c-34)(c-57)00(D-36),(D-47)(F-06) FTC9
i
~~l~~[~!~~l~ -1
(F-33)(1czD2
Bfzi%$pJ q
HR14M03AB
J/BRADIO REMOTE
CONTROL SWITCHJ/B
3Y
_------
!
(Y-W)
3(1
I
CLOCK
SPRING
I
*m
(UP TO 1995Y
(Fgyiiz/g~-
MODELS).FULL AUTO A/C4----1I
I
RADIO REMOTE
CONTROL SWITCH'T;Tk\IGHT
-T-2R-W
IRADIO AND TAPE PLAYERIIII
------1
(T)Y-
;-----.
@$* -=.------)E
(T>Y-L 2(T>GR-1
(c-34),>3E-----_
(T)Y-L(T>GR-'L
------11
(T)GR-I(T>Y-IR (T>GR-R22
+-
(LH)
- ------- ----------------------‘i1
r 1
7
r
12
i%A'CPR (T)GR-R.FULL AUB-Y.MANUAL I.ELC-4A/i
-;t_310_----_,,21> B-Y
B-Y
lhll (c-15)
B-YjE;EW&AND
.FOG LIGHT
B-Y12
4m7+-RHEOSTAT(RH)\Y/
REAR
SPEAKER
1 TSB Revision
Page 634 of 738
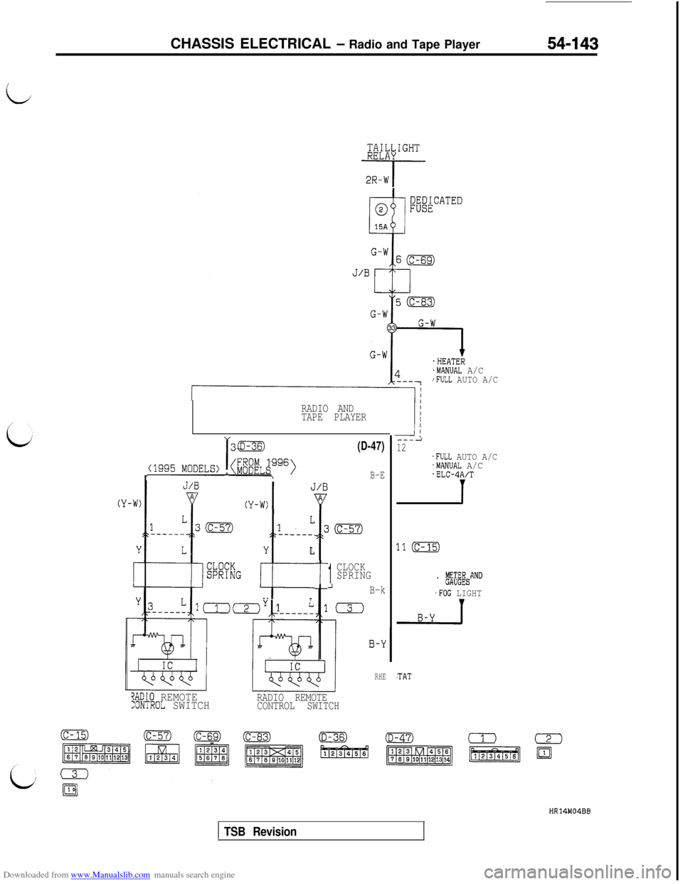
Downloaded from www.Manualslib.com manuals search engine 54-138CHASSIS ELECTRICAL - Radio and Tape Player
CIRCUIT DIAGRAM
(CONTINUED)
REAR WINDOW
GLASS ANTENNA
I\
IRADIO AND TAPE PLAYER
-
1
I
-___------------14
4
-f
1
CT>CT>W-LB-L
(c-15):Ir----
1
CT>CT>W-LB-L
7
I
2I
(D-02)
+
r
CT>CT>W-RB-R
1
;!l.--_-‘0 (D-42) (E-01)
CT>CT>W-RB-R
I
I
F-----
(D-13)3,
(RH)
)
16
I
2
CT>B-LCT>W-R
----
(T)B-R
14 (E-32)
1
(E-04)
(LH)
DOOR
SPEAKER---..SPEAKER
El.-.-
(RH)(LH)\”IXlnRFRONT
SPEAKER
HR14M03BA
1 TSB RevisionI
Page 635 of 738
Downloaded from www.Manualslib.com manuals search engine NOTES
TSB Revision
Page 636 of 738
Downloaded from www.Manualslib.com manuals search engine 54-140CHASSIS ELECTRICAL - Radio and Tape Player
CIRCUIT DIAGRAM
J,
IGNITIONSWITCH(ACC)IGNITIONSWITCH(IG1)FUSIBLE LINK@
B-W 2B-\i
2L1HORN5W-BCHARGING2B-y
,,I(c-68),4--J/B1-----------_
I1
010A
T
1I----4------I
MOTOR
I#L" IUNIT
I
(F-31):
(D-47)
1
B-W
IIIOD OR STORAGE
CONNECTOR+'BUZZERTW&ALARMIOD OR STORAGE B-wCONNECTOR
5(A-11X)I----__-------__-------
-1
rc
---
v
DOW'tT0jHAMGER(F-40)!
2B
*\/4,4,\,L-35,\,\6
B
0
2BY
2F
n
ii&
Ei
_-i2
RADIO AND TAPE PLAYER
HR14M04AATSB Revision
Page 637 of 738
Downloaded from www.Manualslib.com manuals search engine CHASSIS ELECTRICAL - Radio and Tape Player54-141 ~
J/B
REAR WINDOW
GLASS ANTENNA
RADIO AND TAPE PLAYER2
I
I
I
1 &B-l
III
b
I
Lee------
(T>O.85W-I
(c-
(TjO.851
CT>0.85B-L
CT>0.85B-L
1.------__
CT>0.85R-E
(T)0.85W-F
;
CT>0.85BF
---- --__.3
CT>0*85B-r;
3------__
(T>0.85B-Ii
AMPLIFIER
--____----__a
(T)2W-I
(T)O.85W-I
vEc
>
1
40
>3
1*
2
1r
+
(F.T)W-I
5(E-3E
(D-16)131-------_
(T>W-I
1
,ocm,-/’-L(LH)(RH)\(LH)(RH)LJ
FRONT
SPEAKER:-------
)
(T)2B-1
------__0
(T)0.85B-L
(F*T)B-L
(T>B-L
--E
2
1
t
(T)2W-F
-----___.l
CT)0.85W-i;
(F*T>W-6
14
(T>W-F
)
-----_Y1516
(T>2B-
1
CT>3. 85B-1
R
12
i
0
i
16,\
R
2
:.T>B-I
1------
(T>B-
1
-I
HR14M04AB
TSB Revision
Page 638 of 738
Downloaded from www.Manualslib.com manuals search engine 54-142
CHASSIS ELECTRICAL - Radio and Tape Player
CIRCUIT DIAGRAM
(CONTINUED)
-v------3!7
<(T:i25TRY F
0
CT)CT)Y-LGR-L
(F-19);)._----_
CT>CT>Y-LGR-1
,,l2
(F-33)&
+
-1
j
/
,
11
2
)
-
------8
\
(LH)
-r
1
1. 25Y-R‘2iY
0
CT)CT>Y-RGR-I
AMPLIFIER
------7
1
E
T
/+-
(RH)
------_3------1
2B2E
2E
YJ
REARSPEAKER
-(E-39)
9
HR14M04BA
1 TSB Revision
Page 639 of 738
Downloaded from www.Manualslib.com manuals search engine CHASSIS ELECTRICAL - Radio and Tape Player54-143
i@;X&GHT
-i-q-
.HEATER.MANUAL A/C.FULL AUTO A/C
RADIO AND
TAPE PLAYER
L1
------.
Y
t
L
. .i
t
(D-47)
B-E
1
CLOCK
SPRING
_IB-k
0
?ADIO REMOTE:ONTROL SWITCHRADIO REMOTE
CONTROL SWITCH
0-Y
RHE
3
---212.FULL AUTO A/C.MANUAL A/C.ELC-4A/T
1
.1 (c-15)
. ,$&AND
.FOG LIGHT
'TAT
HR14M04BB
TSB Revision
Page 640 of 738
Downloaded from www.Manualslib.com manuals search engine 54-144CHASSIS ELECTRICAL - Radio and Tape Player
CIRCUIT DIAGRAM
\
d’
FUSIBLE LINK@IGNITIONSWITCH(ACC)IGNITIONSWITCH(IG1)
p&J-B SW-i
1
22L
HORN5W-BCHARGING 33-W
,,I (c-68),$-----------___,,7(c-82)
J/BI\
@10A
(c-83:
21
L
$A
2
‘1--------01 (c-70)2
i
RR-Yt1R-B2
L------__l-2y3(c-70)
_J
(c-80)
IIIOD OR STORAGE
CONNECTOR,
0L
1
R-B
R-P
my,
;;;4i;eUISE R-B1,,l I
:ZiTO
I,\ ,I
CHAMGERI
(F-40) '
L
*l-(D-47)
i
r.l
E
;
2ec
0
I
IOD OR STORAGE:TOR (~-11~) B-W--------_--___
B-WB-W
7BUZZER
----1r------------IIIF-:
MOTORi----_-_---ANTENNA
RADIO AND TAPE PLAYERI
d
HR14MOSAA
TSB Revision
Trending: oil change, ESP inoperative, low oil pressure, steering, Speedometer, charging, air suspension