sensor MITSUBISHI 3000GT 1992 2.G Repair Manual
[x] Cancel search | Manufacturer: MITSUBISHI, Model Year: 1992, Model line: 3000GT, Model: MITSUBISHI 3000GT 1992 2.GPages: 738, PDF Size: 35.06 MB
Page 177 of 738

Downloaded from www.Manualslib.com manuals search engine CIRCUIT DIAGRAMS - Cooling Circuit175
COOLING
COMPONENT LOCATION
Name
Air conditioning compressor lock controller
Air conditioning control unit
Condenser fan motor relay (Hi)
Condenser fan motor relay (LO)
Symbol
Name
Symbol
ERadiator fan motor control relay (up to 1993 models)B
D
Radiator fan motor relay (HI)A
BRadiator fan motor relay (LO)A
BTherm0 sensorC
U16FO257
3 IIRadiator fanmotor relay
Air conditioning
compressor lock
controller
I\R19F013400002185
:p ?GKli$~E[ \y\
\CUP to 1993 models>Condenser fan
V16FO292
TSB Revision
Page 178 of 738

Downloaded from www.Manualslib.com manuals search engine 176CIRCUIT DIAGRAMS - Cooling Circuit
COOLING CIRCUIT (UP TO 1993 MODELS)
‘LJ\
IGNITIONIGNITSWITCH(IG2)SWITCINIGl)FUSIBLE LINK@
2R-B
2R-B
28-h2L-B
7
b
“t
'""I, L-RI + 0.85B-W
T
tL-RI
2L-GL-R2L-GL-R0.85B-W
5,l,,511
(A-04X)I\fi RADIATOR A59 (D-04)7T
-------&!EA?oToR-------
;,ON\I (LO) (HI).OFF-:flN\/ _L
43I43
L-Bh28
G-BL-Y
JOFF-
2L-Y
2L-YG-B
01
I
L-B
L-BG-B
,36/ZPI
(D-45)7
L-Y
2
d
ENGINE
1 d
1
?
COOLANT
LEVEL SENSOR
OFF -0; (A-56)
iBRESISTOR
L
RADIATOR FAN ASSEMBLY(A-55)
2E
2E
6
HRO-SMOOAA
TSB Revision
Page 180 of 738

Downloaded from www.Manualslib.com manuals search engine 178CIRCUIT DIAGRAMS - Cooling Circuit
COOLING CIRCUIT (1994, 1995 MODELS)
FUSIB ELINK 5bIGNI:SWIT(3N(IG2)IGNITIONSWITCH(IG1)
B-W
2.-_______--____
2R-B
,FULL AUTO A/C
2R-B.MANUAL A/CA
2L-E
(c-82)
(c-69)
METER AND GAUGES
TURN-SIGNAL
LIGHT AND
HAZARD LIGHT
L-F
(A-04X)
L-I
I'
(A-07X)
3
,2 (C-31)25 (D-45)
L-Y 7G-B..2
(A-56),\ENGINE
ENNTOFF '?ON- SENSOR
R 1
2L-GL-k
1,,5
I
RADIATOR;;EA~OTOR-------___
(LO)(HI) OFF-:iJN
3
'4
2BG-E
x----~~~----~~~~-~-------
G-B
‘TrIN
1
i
2B
L-E
1
L-EG-l
11---
2L-Y
-
VEHICLE
!%kAND %i%R
pW#IATOR :
ASSEMBLY :(RESISTOR) .
r(A-55):G-Y
ELC-4A/TI53___- __-- ------166------------@--.&J(C-53)
2B
1 TSB Revision
Page 186 of 738

Downloaded from www.Manualslib.com manuals search engine 184CIRCUIT DIAGRAMS - Cooling Circuit
TROUBLESHOOTING HINTS1. Neither the radiator fan nor condenser
fan rotate at all.l Check fusible link No. 5
2. Only the condenser fan does not
operate.l Check dedicated fuse No. 8.
3. The radiator fan and condenser fan do
not operate in the low speed mode, but
operate otherwise.(1) The
AK compressor magnet clutch does
not enter the “ON” state.
lCheck whether the output of the auto
compressor control unit is available.
NOTE
For troubleshooting of the air conditioningcontrol unit, refer to GROUP 55.
(2) The A/C compressor magnet clutch enters
the “ON” state.l Check the resistor.
lCheck the radiator fan motor relay (LO)
and condenser fan motor relay (LO).l
Check the therm0 sensor (for radiator
fan).
(3) The radiator fan does not rotate when the
air conditioning switch is turned ON.l Check the radiator fan motor control
relay.4. The radiator fan and condenser fan do
not operate in the high speed mode, but
operate otherwise.l Check the
therm0 sensor (for condenser
fan).l
Check the radiator fan motor relay (HI) and
condenser fan motor relay (HI).Fan Operating Mode
ant temperature
switch (for air
conditioning
cut-Radiator fan mo-
3°C(239 f 5°F) orover, ON at 108°C
OFFONLOW
LOW
ON
ONHIGHHIGH
ON
OFFHIGH
LOW
TSB Revision
Page 187 of 738

Downloaded from www.Manualslib.com manuals search engine CIRCUIT DIAGRAMS - Cooling Circuit185
OPERATIONThe engine control module controls the power
transistors (high speed and low speed) in the moduleto provide radiator fan motor and condenser fan
motor rotation controls in accordance with the engine
coolant temperature and vehicle speed.
NOTEIn the event of faulty water temperature sensor,
the engine control module commands the fan motors
(for both radiator and condenser) to rotate at high
speeds.1. Radiator Fan (Low Speed Rotation)
l
When the engine control module turns onthe power transistor (low speed) in the
module, the current flows from the ignition
switch to the engine control module throughthe radiator fan motor relay (LO) coil.
If the current flows to the fan motor relay
coil, the switch of the relay turns on to supplythe motor driving power (for low speed
rotation). This will cause the current to flow
from the battery to the ground through the
radiator fan motor, relay switch and resistor,rotating the radiator fan at low speeds.
2. Condenser Fan (Low Speed Rotation)
l
The power from the NC compressor lock
controller turns on the condenser fan motorrelay (LO) to rotate the condenser fan at
low speeds.3. Radiator Fan, Condenser Fan (High
Speed Rotation)l
When the engine control module turns onthe power transistor (high speed) in the
module. the radiator fan motor relay (HI)
and condenser fan motor relay (HI) will
operate and the motor driving power (for
high speed rotation) is sent to the radiator
fan motor and condenser fan motor to rotate
the radiator fan and condenser fan at high
speeds.
TROUBLESHOOTING HINTS1. Neither the radiator fan nor condenser
fan rotate at all.
l Check fusible link No. 5.
2. Only the condenser fan does not
operate.l Check dedicated fuse No. 8.
3. The condenser fan do not operate in the
low speed mode, but operate otherwise.
(1) The A/C compressor magnet clutch does
not enter the “ON” state.l Check whether the output of the air
conditioning compressor lock controller
unit is available.
(2) The A/C compressor magnet clutch enters
the “ON” state.l
Check the condenser fan motor relay
(LO)-4. The radiator fan and condenser fan do
not operate in the high speed mode, but
operate otherwise.l Check the engine control unit.
Fan Operating Mode
VehicleA/C compressor lockspeedcontroller output
k%
80 or less[50 or less]
LO
(OV)
80 or more[50 or more]HI (12V)
,_ -
Engine coolanttemperature
$1
Approx. 95 [203] or less
Approx. 95
[203] or more
Approx. 105
[221] or more
Approx. 105
[221] or less
Approx. 105
[221] or more
Approx. 105
[221] or less
Approx. 105
12211 or moreTransistor
Transistor
in enginein engineRadiatorCondensercontrol unitcontrol unitfanfan
Low speedHigh speed
OFF
OFFOFFOFF
ONOFFLow speedOFF
ON
ONHigh speedHigh speed
OFF
OFFOFFOFF
ONONHigh speedHigh speed
ON
OFFLow speedLow speed
ON
ONHigh speedHigh speed
1 TSB Revision1
Page 190 of 738

Downloaded from www.Manualslib.com manuals search engine 188CIRCUIT DIAGRAMS - EL(=-4 A/T Circuit
ELC-4 A/T CIRCUIT (1992 MODEL) (CONTINUED)
MGB6 EbAIR CONDITIONINGA/T FLUID
COMPRESSOR LOCK
CONTROLLER$$/g;;ATURE
I
--_-----_-
ENGINE CONTROL MODULE 1
I (cooL)(HOT)I45W-B1
G-RI1
G-‘
_-----
i
3o,(c-52:
7
(c-
I ! L-WWW-R II\3 (c-29)
drIOD OR0(G-RSTORAGECONNECTOR m^
I08E
(DOHC-Non-Turbo>
6--------- -_______818
(Y-W)
BR-C
4Y-W
Y-W
I
6m
10
I
SPEED
SENSOR
(@%*)
.I
1
‘iOFF- ON
------_
(P:
)P-------
P
)
IGNITION
POWER
TRANSISTOR;;;XbERATOR(Y-R)
SWITCH
(c-13)
AUTO-CRUISE =CONTROL UNITH
:A LINKJNECTOR-
HR07MOOBA
TSB Revision
Page 198 of 738

Downloaded from www.Manualslib.com manuals search engine CIRCUIT DIAGRAMS - ELC-4 A/T Circuit
ELC-4 A/T CIRCUIT (1994, 1995 MODELS) (FEDERAL) (CONTINUED)
d
A/T FLUIDTEMPERATURE ENGINE CONTROL MODULE
SENSOR AIR CONDITIONING
COMPRESSOR LOCK
CONTROLLER
JL
l(c-52
L-W
!4----..
-----w-
T--
.FULL AUTO A/C.MAN'JAL A/C3
G-Y B-1G-R
MFI SYSTEMT
23.---_-----___ __
7
(c-54
W-L
17------_ G-R
11(c-77)2
----s
R-B
(c-29)
R-B 8
(A-67)
G-R
IOD OR
STORAGE
CONNECTOR
(A-11X)
(F>R-B
IDOOR LIGHTAND LUGGAGE~~ld~~"'"""'R-E‘d
DOME LIGHT,FOOT LIGHT
AND IGNITION
KEY CYLINDER
ILLUMINATION
LIGHT
HEADLIGHT
P
-I
61
G
1OFF - ON
-
Y-W
1
SPEED
SENSOR
(Y-
Y-
2B
DATA LINK CONNECTOR
(c-79)HR07M02BA
1 TSB Revision
Page 202 of 738

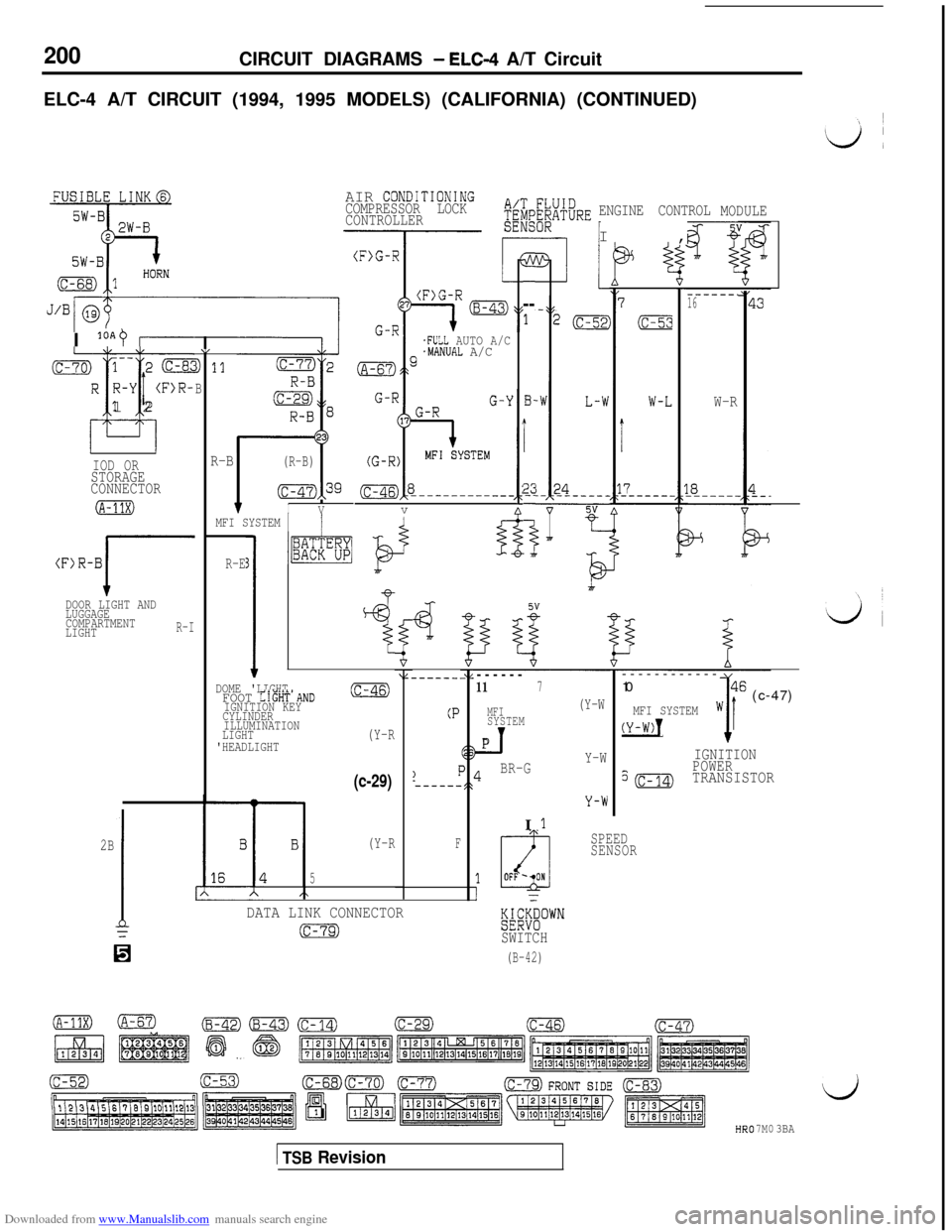
Downloaded from www.Manualslib.com manuals search engine 200CIRCUIT DIAGRAMS - ELC-4 A/T Circuit
ELC-4 A/T CIRCUIT (1994, 1995 MODELS) (CALIFORNIA) (CONTINUED)
AIR CONDiTIONINGCOMPRESSOR LOCK
CONTROLLERENGINE CONTROLI,MODULE
3---
1
B-
i
2;-
i
7
SW-RI +
------.16
W-RI
loAO I.FULL AUTO A/C.MANUAL A/C
v(c-70) 1-- 2 (c-8cR R-Y
(F>R-
T-i
i12
1,
D 11
B
R-B(R-B)
(c-47),39
fIV
IOD ORSTORAGE
CONNECTOR
(A-11X)MFI SYSTEM 1/
(F)R-B
JDOOR LIGHT AND
LUGGAGE
COMPARTMENT
LIGHT
R-I
R-E3
1
I1~%“BF
4
l-
“i------
117
MFI(Y-W
SYSTEM
_TPI
BR-GY-W------------
10
w46 (c-47)MFI SYSTEM
(Y-W)!1I
IGNITION
?(c-14)
POWERTRANSISTOR
DOME 'LIGHTFOOT LIGHT'AND(c-46)
IGNITION KEY
CYLINDER
ILLUMINATION
LIGHT
(Y-R'HEADLIGHT
(P
(c-29)
2B
1=
SPEED
SENSOR(Y-RF
5
DATA LINK CONNECTOR
(c-79)%%““”SWITCH
(B-42)H
7M03BA
1 TSB Revision
Page 206 of 738

Downloaded from www.Manualslib.com manuals search engine 204CIRCUIT DIAGRAMS - ELC-4 A/T Circuit
ELC-4 A/T CIRCUIT (FROM 1996 MODELS) (CONTINUED)
”6C
3
1
4- -_
Ii
5!53-
A--1
B-b
Ia-
!-
I I-IL(c-52
L-W
4.-----_
* 2/
7
(c-53
W-L
I
7-----__
16
(c-9;
W-F
!B----
G-R IMANU!L A/C
1
R-
-.lL
I”1
3
14
F
I
.f
i
.f
1
-
,BV
-
I l-31OME LIGHT.:OOT LIGHT(c-46)
\ND IGNITION:EY CYLINDER~~@INATION(Y-RiEADLIGHT
IOD OR
STORAGE
CONNECTOR
(A-11X)
I(F>R-B
IDOOR LIGHT
AND LUGGAGE
f~$RfRTMENTR-E
nJ
!OFF - ON=
1
SPEED
SENSOR -------2B
!r-=
DATA LINK CONNECTOR
(c-79)-%%"""SWITCH
(B-42)
HR07M04BA
TSB Revision
Page 268 of 738

Downloaded from www.Manualslib.com manuals search engine 266CIRCUIT DIAGRAMS - Manual Air Conditioning Circuit
MANUAL AIR CONDITIONING CIRCUIT (FROM 1996 MODELS)
IGNITIONSWITCH(IG2)
2R
7(c-69)
2R
REAR WINDOW
Fi/iIATOR
ASSEMBLY
iRADIATOR
FAN MOTCR)
2L-G
I
L-R
2L-G2L-G
I1
L-R
5
(F)E
ENGINE
COOLANT
;[/X?&';;ATURE
(8-02)
L-E2BIG-E11~-~----------------~______
G-B
RADIATOR
FAN
ASSEMBLY
(RESISTOR)
(A-55)
L
EiSLE
j(c-29)SENSOR
I
L-BG-E11-------.
G-YL-R
F=- - - - - - -!O2----
(F)1.256
I----MFI SYSTEM
(F)1.25E
-----------
I
2E
(LO)(HI)
n
HRlPMlOAA
TSB Revision