MITSUBISHI 3000GT 1992 2.G Workshop Manual
3000GT 1992 2.G
MITSUBISHI
MITSUBISHI
https://www.carmanualsonline.info/img/19/7561/w960_7561-0.png
MITSUBISHI 3000GT 1992 2.G Workshop Manual
Trending: air condition, lock, wiper fluid, cruise control, tow, transmission fluid, spark plugs replace
Page 131 of 738
Downloaded from www.Manualslib.com manuals search engine CIRCUIT DIAGRAMS - MFI Circuit 129
1
LEFT BANK
HEATED OXYGEN
SENSOR(FRONT)
(F)1.25R(F)O.B5R
(F) 1.251
1.25(
1. 25(
11.25(
II1II1II1II/I
1 ;
vi
Ii
2 IIIIIIIIIIII
I
2'--J
14
.25R
.25R-W
IIII
tqIII/II
4I
,
I
II
i
r
24
(F>f
KNOCK
SENSOR
1
I
I
I
I
IIII
I
/1,I
kI1IIIIs-2
0
(F)1.258I
172---
1
m
I I
2
(B-31
0.8581
3
-----_
(F>I. %Y-
15-----
tiJ
-I I”’IL
(B-08)(B-33:
0.85Y-h
R
I i
:B-3;
0.8%
.---_
L-f
;----
*
B/
’ IL/D
(B-07)
/WL-(F)0.85G-W
(c-53)18(c-52)
3
1
jS(c-53)
I
ENGINE
CONTROL
MODULE
c&l1234
HR05MOXBII
TSB RevisionI
Page 132 of 738
Downloaded from www.Manualslib.com manuals search engine CIRCUIT DIAGRAMS - MFI Circuit
MFI CIRCUIT (1995 MODELS) (FEDERAL) (CONTINUED)I
Yj ~
J/B
lMULTI-PURPOSEFUSE@i
v
c: CLUTCHV&IGHT
IO.S5R-BInn I.,IWITH&EU'SEIA;;EXkCATED 3B-RG-YI
I .STOP
LIGHT
SWITCH
4OFF
1 ON
(c-62)1
0.05G p -,.I
CONTROLLEDMIRROR G)
cu%I@iNTI-LOCK,t-?nv r ?.I,7 LII,C.TF,lII iII lnIfli-lF.Ibmmlluu DID,C,VI.STOP LIGHT+ch;;h~~fUISEIt
R-G
t
19 (c-29)G
R-G24---------------- ------------------------------.V'21------------- ENGINE(c- ~~~~~pr------------------
17d130
m
G
-3
-i
ZJi
-R17
-R
_
E
-R
IG
3@g
G
-5
101B
WL-F
--IELC-4A/T
METER AND
GAUGES
G-E
G-k
I
11 (c-29)
LE(F)B-L(F)B-W
_-----------15
(G-R)
ELC-4A/T
I(A-67)
RAD
FAN
REL,(Lo:
IA'
FE"'
L
IGNITION POWER TRANSISTO;RADIATOR
FAN MOTOR!!m!~fiIC
%PY
HR05hi03DA
1 TSB Revision
Page 133 of 738
Downloaded from www.Manualslib.com manuals search engine CIRCUIT DIAGRAMS - MFI Circuit 131 (
MFIRELAY7TRPqXLE C
W-l
'(c-53)
TROL M
W-I
59
ULE
1
EVAPORATIVE
%P ONSOLENOID
BR-l
116----------7
P
5v
PB
_--___---__-___-_-_-____--_-____--- ------_
07
r113---_-_-_-___-___-_------.12ELC-4A/T p
(p) @s>(Y)J/BAP------4 ':PI(c-29)$tB@FN’C
SUSPENSIONB-G.FULL AUTO A/Cm
BB P R-B (Y)4 5 1
16 7nA A A A A=DATA LINK CONNECTOR
(c-79)1
IGNITIONTIMING
ADJUSTMENT
CONNECTOR
(F>L-h
2B
(A-18) (A-20) CFnl (B-06) (B-38)- (c-29)
Ii3f?JJ @3J @ 9 ~10j11~~12~13/14/15~16)171118/19
(c-79) FRONT SIDE
HR05M03DB
TSB Revision
Page 134 of 738
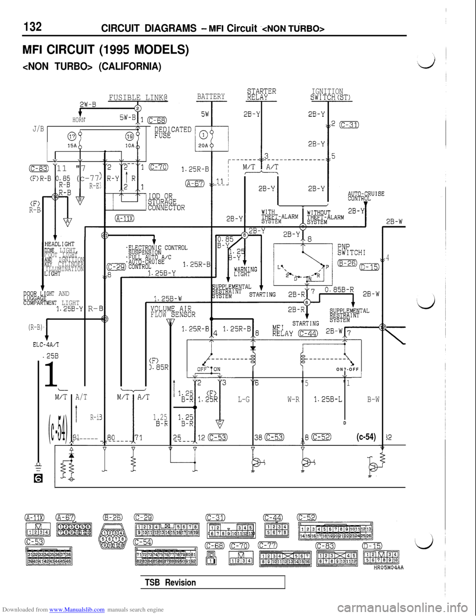
Downloaded from www.Manualslib.com manuals search engine 132CIRCUIT DIAGRAMS - MFI Circuit -
MFI CIRCUIT (1995 MODELS)
(CALIFORNIA)
FUSIBLE LINK@BATTERYEKE”IGNITIONSWITCH(ST)2W-B
HORN
J/B
I
0415Ab
I :;\/
(c-83) 11 "7
(F)R-B Ok"; (c-77R-E)3
(F)R-B
1
I
/I
1
1Ll
8
HEAbLIGHT30ME LIGHT,'OOT LIGHT4ND IGNITION
E8ZAICOMPAI
;GHT AND
'MENT LIGHT1.25B-Y R-
2B-Y2B-W
4
VOLU
FLOW
7
(F)3.85k
(R-B)
ELC-4A/T
i2
.25B
1
M>
(c-54)
OFF-tONON?-OFF
B-W\/
'6"5"1
L-GW-R1.25B-LD
3808(c-52)A
1.25B-E
I
A/T
IR-i
91------(c-54)
TSB Revision
Page 135 of 738
Downloaded from www.Manualslib.com manuals search engine CIRCUIT DIAGRAMS - MFI Circuit 133 ~
IGNSW1
28.
ITI1TCH
a:6
WI
2B-Y(
5
t
(D-44)1.25B-L--------___
(D-03)ICOMBINATION
METER/ 1.25B-L
(F)1.25B-W/
G-lliiiioojllliR:1IIIY-WI
t
I
----~~--~-----------_6m
IGNITIONY-W
I
/II1. :25B
G-h(Y-W)$, (F)Y/I+JI
,
L--------,,E
ELC-4A/TY-WMETER AND
GAUGES
(c-53)35B
------libel l. :0
2B
(IGl)B-W
1
J/BCHARGING
1.25B-L
FUEL PUMP0.85B-wCHECKCONNECTOR 1.25B-1i
TURN-SIGNAL LIGHT
g(D-04)AND HAZARD LIGHT
1
;;y;&NATION1. 25'B-R
-I
t.--r------I
MFIRELAYII7
4ic-30)
g(c-34)
3
1
FUEL
PUMP
m
)
j(F-14)
oFm (c-14)Cc-30)(c-34)(c-53)(c-54)(c-71)(c-82)
HR05M04AB
1 TSB Revision
Page 136 of 738
Downloaded from www.Manualslib.com manuals search engine 134CIRCUIT DIAGRAMS - MFI Circuit
MFI CIRCUIT (1995 MODELS) (CALIFORNIA) (CONTINUED)
.vj ’
VOLUME
i!Wiiow
!B-29)
r:NGINE
'OOLANT
';/i!P;~ATURE
-W
I---
$
?Ir
I\,
2“1
(F>B
_ (F)B
-CF)G-Y
l-
'6
(F>G-Y
4c
I
E.-
i5v
E-------
7
(F11.25
5
(F)R-'I(F> 1. 25:(F)R-I
I?--..-
1
(F>C
(F)L-Y(F>B
0.---- ----15---------______
I
:<-1 GND1 GNDGNDGNDV VV V:-x------Y:-x------Y13 1333 (c-52)33 (c-52)
1.25B1.25B1.25B1.25B
1.250 1.250
1.25B1.25B
nnnn
HROSM04BA
TSB Revision
Page 137 of 738
Downloaded from www.Manualslib.com manuals search engine CIRCUIT DIAGRAMS - MFI Circuit
135
THROTTLEg;;W;;ONEGRVARIABLE INDUCTION
;E;g;EATURECONTROL MOTOR
I/IrIIr
OFfNcI---
l-
)Y
F)G-
+m-
(F>G-h
----_
(F>B(F>B (F)G-!I
(F)LG-B
3
(F>Y-(F)l(F)BR-f.__--_
(F)B-L:F>G-E
(F>B
OG-Y
Y-L
I-ELC-4A/'
Y-R1
(F)R-W
.ELC-4A/T$J~@fU'SE
(F>Y-(F>BR-f;
7
ITOR'IVE IC-
CONTROL
MODULE
(A-22) (B-05)(B-OS)(B-10)0
m I/~) j@+-/ p&
(c-54)
i
HR05M04BB
1 TSB Revision
Page 138 of 738
Downloaded from www.Manualslib.com manuals search engine CIRCUIT DIAGRAMS - MFI Circuit
MFI CIRCUIT (1995 MODELS) (CALIFORNIA) (CONTINUED)
MFI RELAY
(F> 1.25R(F> 1. 25R(F) 1.25R (F) 1.25R(F) 1.25R(
(F) 0.851;
(F> 1. 25RI
!!I(F)l.25R z5R (F):5Rm %fR
F)L-W
I
I
(F)L
~8_----E
L5v
GNDGNDV
------1326 (c-52)
‘;i 1 ,
ENG I NE
1.25BCONTROL
MODULEI
/ TSB RevisionI
HR05M04CA
Page 139 of 738
Downloaded from www.Manualslib.com manuals search engine CIRCUIT DIAGRAMS - MFI Circuit 137
LEFT BANKRIGHT BANK
HEATED OXYGENHEATED OXYGEN ~~~~~~LEFT BANK
HEATED OXYGENRIGHT BANK
SENSORCFRONT)HEATED OXYGEN
(B-16)SENSORCREAR)
(8-44)SENSORCFRONT)
cB-45)
(B-19)
'r------Ii-
3
1
:II
m/II
I
I/I
I c,I L4
“I '3
1/%:I
105 mI
I 62mj
12/I/ .J
j *I
I/II/I -II
i B "
IrIII/1J
LB
(Fj1.25
(F11.25
(F)O. 85R
1--_-____I__--_--_
1.25I1II
I
III
I
I/I/I
l I
v I
1:
21IIIIIIII
I
II
I
2 1.-J
1.25R
1.251
;B
;B
(F>E
1.25R-
1
I
H
2
(8-32:
0.85h
4.-----
F).85G-R
1.25(
INJECTOR
r
1
11
pV
0.85B.R
3L----.
(F)(F)0.05Y-1.25B
14
L
(B-33:
0.85Y-'i
/
L;
(B-07)
CF:
'7---.-
5-
(F)0.85G-W
ti
JENGINE
Elm"
HR05h404CB
TSB Revision.
Page 140 of 738
Downloaded from www.Manualslib.com manuals search engine 138CIRCUIT DIAGRAMS - MFI Circuit
MFI CIRCUIT (1995 MODELS) (CALIFORNIA) (CONTINUED)
J/BMULTI-PURPOSE
REAR WINDOW
,,,,,~~ ;'qB-1
;~;;'L"~G;;STEM ~;LJh#J'SE
-'T
‘gFGER
-T-
G-Y
2B-R86A-36)
.REAR WINDOWDEFOGGER.REMOTESy[$K!8LLED
G
1
DIODEE-31
19 (c-29)
ENGINEG
2p_--------- ____________________
ILL---
L-F
(L-o:
_---.10
G-Y
I
7----
LB
------------!l
11 (c-29)
(F)B-L(F)B-WF)BR-R(F>'Ei
L
iti
11
(F>U
IGNITION POWER TRANSISTOR
.ELC-4A/T.g;KEISAND
J
: CLUTCH
6(1A-67)
_-----------15
i-R
17
1
(G-R)
:-RELC-4A/T
Ei(A-67)
i-R
AGNE'
PLUTC!NOTE:l:HatcnaackZ2:Convertible
mm (c-62)
HR05M04DA
1 TSB Revision
Trending: transmission, radiator cap, fuse, heating, engine oil, wiring, check engine light