MITSUBISHI ECLIPSE 1991 Service Manual

MITSUBISHI ECLIPSE 1991 Service Manual ECLIPSE 1991 MITSUBISHI MITSUBISHI https://www.carmanualsonline.info/img/19/57104/w960_57104-0.png MITSUBISHI ECLIPSE 1991 Service Manual
Trending: fuel reserve, low beam, stop start, fuel consumption, charging, turn signal, gas mileage

Page 481 of 1216

MITSUBISHI ECLIPSE 1991  Service Manual FUEL SYSTEM - Troubleshooting14-27
IGNSWII
I
I------
l
w
:
l.icc
-------
[ONf (IGl)
3-BWj
64
.\6..8,,lI\/\/\
ENGINE SPEED
ADJUSTMENT
CONNECTOR
r
C-69:23
7t
m
=
-7
2s4
>3
r3COMBINATIONMETERCTACHO)
tlx

Page 482 of 1216

MITSUBISHI ECLIPSE 1991  Service Manual 14-28FUEL SYSTEM - Troubleshooting
9,AIR FLOW SENSOR
A-36
B-043
IDI-6
3
*
I&59- ----h
c
T--
3j8
--_it%$ k-3 116- ----------lLLlU------------12J-----122
------------i
=
POWER
STEERING OIL
;;%fE;RE
B-17

Page 483 of 1216

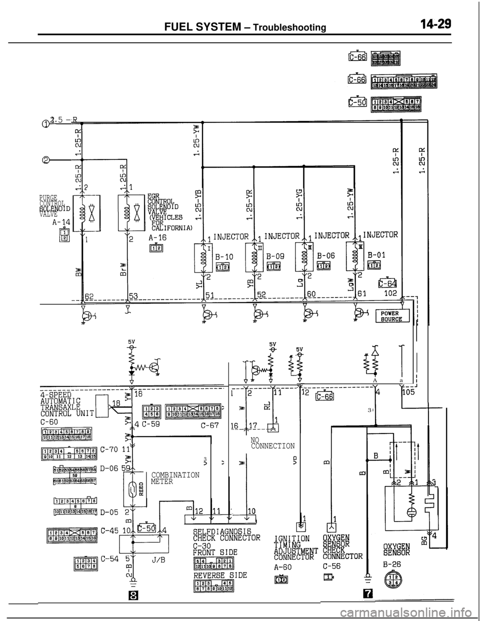
MITSUBISHI ECLIPSE 1991  Service Manual FUEL SYSTEM - Troubleshooting14-29
al.25-
Q
)-
53
-
1
PURGE
CONTROL
GOLENOIDVALVE
A-14
1
B2
ati g---_----_----1 2113
d
Is_ILII-- ,’Aa 
I_______-__--_---
2g&j
1
105’3
L
C-60t
-
!m
NOCONNECTION3
~
5

Page 484 of 1216

MITSUBISHI ECLIPSE 1991  Service Manual FUEL SYSTEM - Traubleshootinn
ZUB FUSII
c-50
103
ELC 4-SPEEDAUTOMATICTRANSAXLECONTROL UNIT
1
ENGINECOOLANTTEMPERATURESWITCH
ICQ
C-64
I
KX3S-AC-UOSi’7B-NC

Page 485 of 1216

MITSUBISHI ECLIPSE 1991  Service Manual 2.0L DOHC Engine (Turbo) <M/T>
IGNITIOFiSWITCH(1$ERMAINLINK
i
I,c
2-BWE
CL
,_________________ ___-__--_--_--~__-~-~~~--- _____-- t,
c-596?-BWAL
,-
G
Al
Ii k-UE PUMP
&NhTOR4 z
CL
\I \/
6"7 "2
g8
c
&I4c

Page 486 of 1216

MITSUBISHI ECLIPSE 1991  Service Manual 14-32FUEL SYSTEM. - Troubleshooting
EmFADJUSTMENTCONNECTOR
t
I
J
c-54
r0
1 1OA
IGNITIONCOIL
B-14
-t I I tpTiJ~PARKI,J
99
i,,8,,l/\W41" NAfi~ISTOR
 B-15
METER(TACH0)
Y
72 3
cl
1
J/B
ET ANATION9c-05A.

Page 487 of 1216

MITSUBISHI ECLIPSE 1991  Service Manual FUEL SYSTEM - Troubleshooting
MPICONTROLRELAY
_ 1.25-R1
ck:IY
FtLocu;cc;2
SPEEDCONTROLI
ACTUATORd4
/\2
-Ii
x
JI---
A-32
mp (
6
0
i7--_
2
1
1 A-513
al-6
22i8--.
A-36
3
i9---4 2
m
7-rE-im5v
FWD !AWD
KX3

Page 488 of 1216

MITSUBISHI ECLIPSE 1991  Service Manual 14-34FUEL SYSTEM - Troubleshootitlg
IIIIIIIIIIIIIIIIIIII
C-67
1
5
COMBINATIONMETER
-------
IGNITION~!%%MENT
CONNECTOR >
A-60I
@g LL
02 C-6L
CHECK CONNECTOR-c-30FRONT 6IDEPOWER
/$imwq-m?RING
REVERSE SI

Page 489 of 1216

MITSUBISHI ECLIPSE 1991  Service Manual FUEL SYSTEM - TroubleshootingM-35
SUB FUS:
aBl c-47
L
@
1OP
-1c-5c
t:
C-64
MPICONTROLUNIT
1
7
J/B
2351tPa w3PSl)
COFi
k
d
t
-_-----
253
it2
03165 C-65
AIR
7
CONDlTiONER
%
CONTROLUNIT
C-401
3
12
J
*
N

Page 490 of 1216

MITSUBISHI ECLIPSE 1991  Service Manual 14-36FUEL SYSTEM - Trotibleshooting
2.0L DOHC Engine (Turbo) <A/T>
ON(IGl)
3-BW
IGNI:SWIT(IGNISW17
WITHOUT
;TEE-
J/B010A
4
-1 C-52~ 4
3c
c
¶2
m3466
+
z
;I,,2I\II_---_----
,~>rJFF:)lANV"3
“1
ifi8
E
Trending: horn, air conditioner, change time, engine coolant, jump cable, Firing order, battery