light MAZDA 323 1992 Suplement Owner's Guide
[x] Cancel search | Manufacturer: MAZDA, Model Year: 1992, Model line: 323, Model: MAZDA 323 1992Pages: 279, PDF Size: 24.15 MB
Page 202 of 279

,c -
-
3
F.R.GERMANY F.R.GERMANY -CURRENT FROM BATTERY -CURRENT FROM BATTERY
-----CURRENT FROM IGl. 1G2 -----CURRENT FROM IGl. 1G2
l
ELECTRICAL WIRING SCHEMATIC =&$&jT FRoM ACC l ELECTRICAL WIRING SCHEMATIC =&$&jT FRoM ACC w-2 w-2
I I l ILLUMINATION LAMPS l ILLUMINATION LAMPS
MAIN BOA MAIN BOA , ,
485 VALVI
30A
HAZARO
30A ET’&” REAA FOG
i il E-5
t ‘=POSITION LIGHTS E-4
0
n LICENSE PLATE LIGHTS E-4
i ’ l TAILLIGHTS E-4
!rJJ:GHT LEVELING
.
i il E-2 REAR WIPER
15A a....*.
--- ~--
4
~FIEAR WIPER 6 WASHER i il o-2 I ----- - ---_ L/G _--...----A-___ 7
I WIPER 20A
,---.... - ----_ L ----
I
HEATER 30A
+-----w-.-L/W-+ -----; --__. l ,,,ZATER
G
I I
I
I METER 15A
I - l COURTESY LAMPS I-3
,--+ ---- (xro ---- FJ,y ----, I
I : I -mINTERIOR 6 SPOT LAMPS
I I SUNROOF 15A I I-2
b----------G/o ---- [ ---..- ~----,mSLIOING
I I SUNROOF
I
i i
I I SEAT WARMER
I
I I +g&)
ETN 30A t : ROOM 1OA
; ; i I ,
I : &---------,WBUCK-UP LIGHTS F-4
I
HORN iOA
STOP :
l- : !
.^. t , B/R l HORNS F-4
I , ABS iOA
- ~-
ABS 60A
9--t-“---
1 t
I :
t
I 1
FLASHER LIGHTS STOPLIGHTS
CHARGING SYSTEM
TRUNK COMPARTMENT
POWER DOOR LOCK K-2
INSTRUMENT CLUSTER
6 WARNING LAMPS C
?:m-“_“_“.B/W ---- +.+,v.-{~POWE~ ,.,INOOWS
K-l
l i .-m-e_ cx/v _____ G _-__ +.:m.
I , i il I-l
L_-----_-, l COOLING FAN SYSTEM B-2
B/L---------------------
R l STARTING SYSTEM A-l
21
Page 204 of 279

SYSTEM CIRCUIT DIAGRAM/
CONNECTOR LOCATIONS
ENGINE-RELATED SYSTEMS EXTEFlIOFl LIGHTING SYSTEMS STARTING SYSTEM...............24 HEADLIGHTS
CHARGING SYSTEM...............26 EXCEPT F.R.GERMANY...........44
ENGINE CONTROL SYSTEM.........28 F.R.GERMANY..................46
COOLING FAN SYSTEM............36 HEADLIGHT LEVELING SYSTEM.....46
TAILLIGHTS
CHASSIS-RELATED SYSTEMS EXCEPT F.R.GERMANY...........48
ANTI-LOCK BRAKE SYSTEM........82 F.R.GERMANY.a................50
LICENSE PLATE LIGHTS
INSTFUMENT CLUSTEA-FiELATED SYSTEMS EXCEPT F.R.GERMANY...........48
INSTRUMENT CLUSTER 6 WARNING
I LAMPS........................38
BOOY-ELATED SYSTEMS WINDSHIELD WIPER 6 WASHER.....40
HEADLIGHT CLEANER.............40
REAR WIPER 6; WASHER...........42
HORNS.........................6 0
REAR WINDOW DEFROSTER.........6 4
SOUND WARNING SYSTEM..........6 6
POWER WINDOWS.................7 4
POWER DOOR LOCK...............7 6
POWER OUTSIDE MIRRORS.........7 8
SLIDING SUNROOF...............8 0
SEAT WARMERS..................8 4 F.R.GERMANY..............u.i5 ii
POSITION LIGHTS
EXCEPT F.R.GERMANY...........4 4
F.R.GERMANY..................5 0
FRONT 6 REAR FOG LIGHTS.......5 2
T;l%&HAZARD FLASHER
sTopLIGHi ..... ...............
.54
F.R.GERMANY..................5 6
EXCEPT F.R.GERMANY...........5 8
BACK-UP LIGHTS................6 0
INTERIDFI LIGHTING SYSTEMS IG KEY CYLINDER LAMP..........6 6
INTERIOR 6; SPOT LAMPS.........6 6
COURTESY LAMPS................6 8
TRUNK COMPARTMENT LAMP........6 8
ILLUMINATION LAMPS............7 0
A;~ATOEOS;DITIONING~LATED SYSTE
........................
ACCESSORIES
CIGARETTE LIGHTER.............64
DIGITAL CLOCK.................6 4
AUDIO SYSTEM..................7 2
OTHER
DIAGNOSIS CONNECTOR...........86
Page 213 of 279

-” ‘ENGINE CONTROL SYSTEM (3/3)
FRM\IT FOG LIGHT RELAY REAR WINDOW
INsTF%+ffNT CLUSTER BLOWER
SWITCH
(SECTION G1
B/O B/O E/LG B/BA L/Y t
(EM) (EM) (EMI (EM)
I
%P
:;~~~=====~::~~~~=~~=~~
POWER STEERING
PRESSURE SWITCH
8
2-01 ENGINE CONTROL UNIT (EM) El-10 POWER STEERING PRESSURE SWITCH(F)
I” IS 10 ID 1M IK iI IG IE 1C ,A 2Y 2W 2U 25 20 20 2H 2K 21 26 2E
2C 2A
R/B O/L G/B G * -G/Y L G/W * v L/R LG L/O Y R/Y L/W R -G/d-G/F * Y/L P/B 3/LG B/O
BR/ B/L B/G L/Y R/W * L/B O/B W/B W/Y W/R G W/L Y/B G/O W R/B R/L G/R R/Y * x B/BqE/O
1” ,T
IR II’ 1N IL 1.J 1H 1F 10 16 2X 2V 2T 2R 2P 2N 2L 2J 2H 2F 2D 28
1-20 AIRFLOW METER (EM) 81-21 THROTTLE SE%;; 81-22 CLUTCH SWITCH (F) 81-23 NEUTRAL SWITCH (EM)
ii
32
Page 215 of 279

1B 0 Main relay
(FUEL INJ r&y)
Ignition switch
(STARI)
1D 0 Self-Diagnosis
Checker
(monitor lamp)
I IJ 0 A/C relay
Ignition switch ON
vs
NC switch ON at idle
6&w 2 54
NC swtch OFF at Idle VB
-
‘“‘~~
System Selector test switch at
I I I
I I I 1L - - - -
- -
IM 1 - 1 - -
I - -
- 1T ThrorUe SW&X
(ii switch)
Foghghl relay
P/S pressure
switch
A/C switch
Electric coding fan
swlch
Blower control
swtch
Rear wlndow
defroster swtch
Neutral/Clutch
switches Tesl condnton
Accelerator pedal released
Accderator pedal depressed -*
B&low l.OV
Vi3
Togllghtsmtcll
Foglight switch OFF
lanitton switch ON V0
OY
VR .-
P/S pressure switch ON at tdle
P/S pressure swtch OFF at I& 6&w 1 .ov
Ye
Fan operatbng (coolant temperature over
97OC I207OF ) or diagnosis connector
Blower control switch OFF or 1st posttion
E~iower conlroi svntch 2nd or higher po-
Rear wndow defroster OFF
Rear wndow defroster ON ~~
Neutral pcsitw or clutch pedal
rlr-n -
Ignition swrlch
ON and biowtr
motor ON -
Ignition switch
ON
Ignition switch
ON
34
Page 221 of 279

6 (F)
ITION
TCH
HEADLIGHT CLEANER SWITCH
ILLLR~TNATToN LAMP
:REFER TO SECTION 1-4
L F)
INDSHIELD WIPER 6 WASHER SWITCH
D-O 1 EXCEPT
F.R.GERMANY
I
+LS,W (F) *
I
E-17
HEAD CLEANER
30A
E-17
F)
I
WINDSHIELD
P Y/W
(I)
D-05
Q HEADLIGHT
~kK5”
O-05
-01 WINDSHIELD WIPER 6 WASHER SWITCH(F)
D-02 WINDSHIELD WIPER
D-03 WINDSHIELD
MOTOR (F) C-05 HEADLIGHT
WASHER MOTOR (F) D-05 HEADLIGHT CLEANER SWITCHII)
CLEAKR MOTOR (F)
L/W L/R
L L/Y
-17 FUSE (F)
40
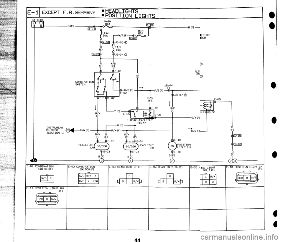
Page 225 of 279

MAIN
B (F) -
INSTRUMENT
CLUSTER
(SECTION 0 @4 +R/W (F)--+-+-R/W(F)
y I
---b/W (F1-J COMBINATIO
SWITCH
JE;;O4
lF1
Y P”blI I”N
=’ LIGHT LH
E-10
B F)
+------ -01 COMBINATION
E-02 COMBINATION
SWITCH(F) E-03 HEADLIGHT LH (F)
SWITCH(F) E-04 HEADLIGHT RH (F) E-10 POSITION LIGHT (;;
-11 POSITION LIGHT RH
(Fl
Page 227 of 279

f-2 F. R. GERMANY =HEADLIGHTS -~
mHEAOLIGHT
LEVELING SYSTEM
HEADLIGHT LEVELING SWITCH
ILLUMINATION LAMP
:flEFER TO SECTION I-4
INSTRUMENT
MAIN.LH IOA
MAIN.RH IOA
46
Page 228 of 279

I-2
J
CGf,MNATION
x
E-03 HEADLIGHT
glAct(,
FUSE BOX
MAIN FUSE
47
Page 229 of 279

MAIN
p
N 0 (Fl
RTN I!
GNITION
WITCH uW,R (F, ,I -
\ -
JB-05
El
HAZi
15
W/B (F) ,/
1, JB-
JB-04 TAIL
5>E-01 0 B
15A
Bh=i
-
R/B (F)
COMBINATION
SWITCH
TAILLIGHT LH
PLATE
LIGHT
1
fii)
4
JB-06 0
WIPER
20A
1 JB-04 a
A (Ff
I-01 COMBINATION SWITCH E-02 COMBINATION ““I\$ E-12 TAILLIGHT LH(RI E-13 TAILLIGHT Ftl(R) E-14 LICENSE PLATE
E-15 RUNNING LIGHT AELA
(0 LIGHT (RI
NO, 2 (F)
I
r.IR/T;lf/Rl I r Y IR/GIG/w‘I I I
F),D I I” I I
Page 231 of 279

F.R.GERMANY 9POSITION LIGtiTS,jmLICENSE PLATE LIGHTS
9 TAILLIGHTS
: i
(SECTION I-21
E-12 TAILLIGHT LH (R) E-13 TAILLIGHT RH (R)
50